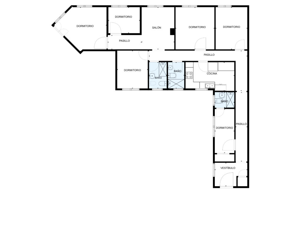
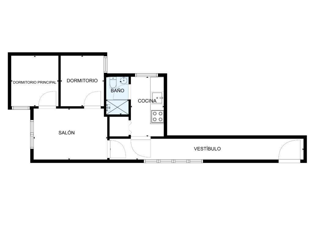
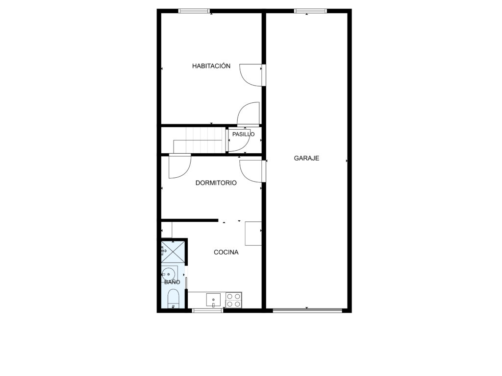
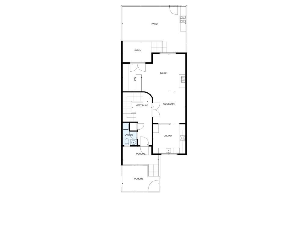
Claridad Espacial y Toma de Decisiones.
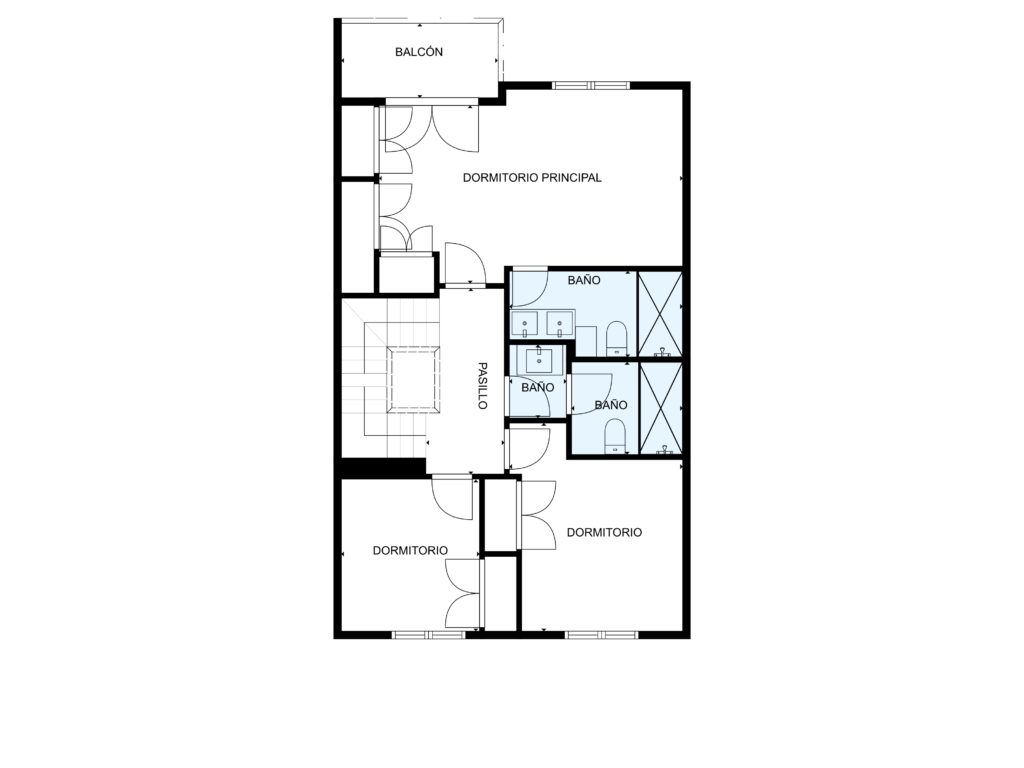
El Plan Orientativo es la herramienta fundamental que transforma la percepción del comprador sobre una propiedad. Este servicio ofrece una visión clara e indiscutible de la distribución y el flujo de los espacios, algo imposible de lograr solo con fotografías. Al mostrar las medidas aproximadas y la disposición de las estancias, se elimina la incertidumbre y se facilita la toma de decisiones.
Este mapa visual permite al cliente potencial proyectar su vida en el inmueble, entendiendo al instante su potencial y distribución. Es un valor añadido que acorta el ciclo de venta al responder las preguntas clave sobre el espacio antes incluso de la primera visita.

Evitar Decepciones y Optimizar la Visita.
La mayor frustración para un potencial comprador es visitar una propiedad cuya distribución no corresponde a sus expectativas. El Plano Orientativo elimina esta decepción al establecer expectativas realistas desde el inicio. El comprador puede saber si la cocina es independiente, si hay pasillos largos o cómo se conectan las habitaciones. Esto asegura que cada visita presencial que realicen sea con un interés genuino en la distribución del inmueble.
El plano no solo complementa las fotos, sino que valida la seriedad del anuncio y garantiza que el tiempo de sus agentes se invierta de manera productiva.

¿QUÉ INLCUYE?












